Leave a Message

Thank you for your message. We will be in touch with you shortly.

Explore Our Properties

Property Description

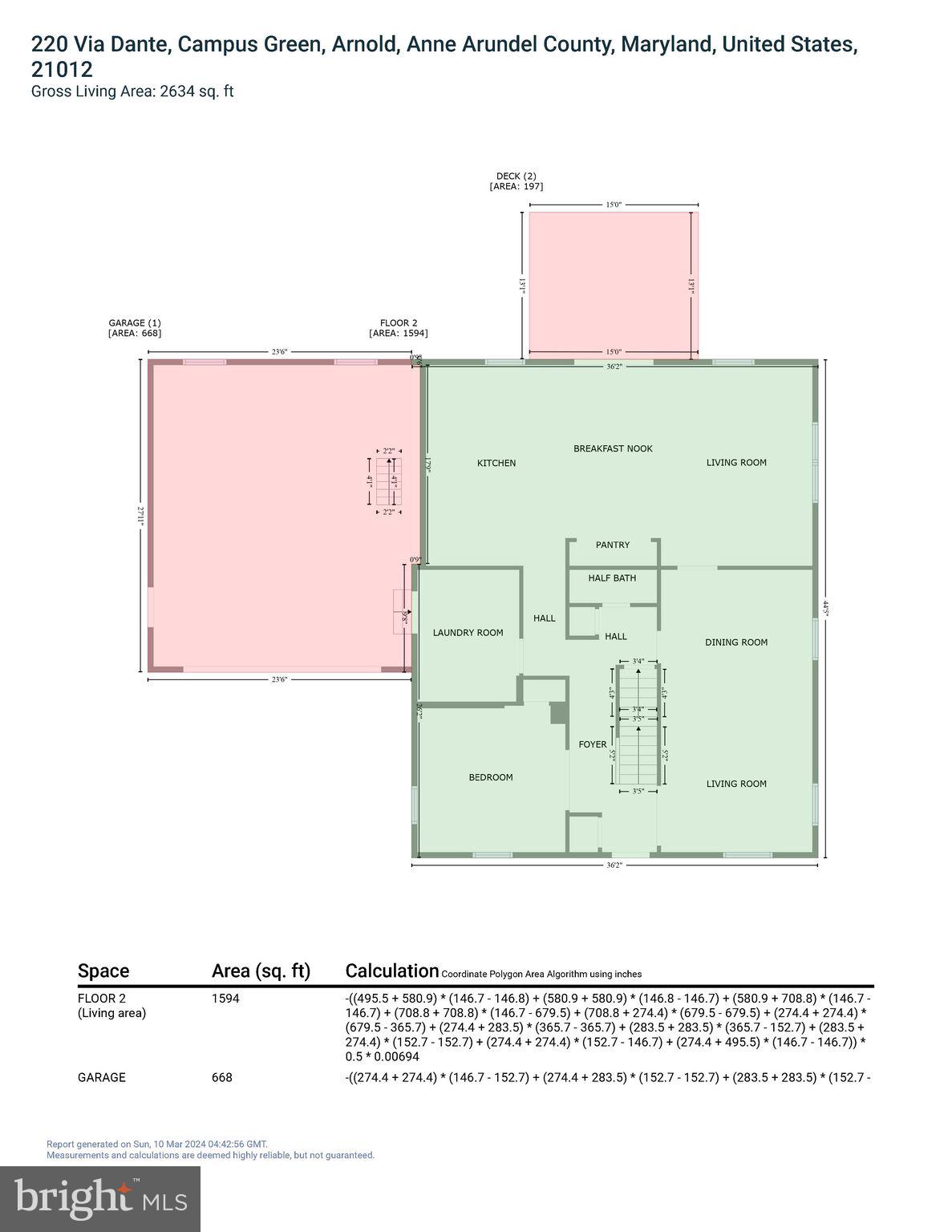
Nestled at the end of a serene cul-de-sac, this Campus Green colonial epitomizes refined living with its plethora of upgrades, updates, and a thoughtfully crafted addition, all meticulously maintained. The spacious addition not only expanded the square footage but also orchestrated a convenient floor plan, enhancing both space and functionality. An oversized attached garage (24'x32'), capable of housing four smaller vehicles, boasts an upper-level storage attic and includes a portable generator power transfer switch for peace of mind during power outages. Upon entry through the foyer, a seamless blend of elegance unfolds with a living and dining room combination featuring hardwood flooring and crown molding. The addition introduces a harmonious fusion of kitchen, casual dining, and family room with sun-filled windows, and an atrium door to the deck. The kitchen is a chef's delight, adorned with custom, high quality soft-close cabinetry, recessed lighting, and an island with a prep sink and breakfast bar. A sizable laundry room and mud room combination with storage cabinets further enhance the home's practicality. The main level is further complemented by a versatile bedroom, perfect for a home office, along with a convenient powder room, rounding out the offerings on this level. The upper level hosts a tranquil primary bedroom with an attached upgraded full bath, accompanied by three additional bedrooms and a full hall bath boasting a double sink vanity. All full baths in the home have been beautifully updated and include heated ceramic tile flooring for a touch of luxury. The lower level presents an upgraded finished recreation space, a full bath, and convenient storage rooms accessible via pocket doors. The crawl space off the lower level provides a recently replaced Bilco door to the side yard. Outside, a rear composite deck offers a picturesque retreat overlooking the lush backyard adorned with foliage and trees. With additional thoughtful updates including interior door and casement replacement, low-E windows, roof ridge vent upon roof replacement, and upgraded insulation in the lower level and attic, this home harmonizes comfort and efficiency seamlessly.

Overview

Property Status
Sold
Lot Size
0.34 Acres
MLS ID
MDAA2077526
Property Type
Residential
Year Built
1970

Features & Amenities

Neighborhood
Arnold
Architecture Styles
Colonial
View Description
Trees/Woods
Garage Spaces
2.0
Water Source
Public
Lot Features
Cul-De-Sac, Front Yard
Parking
Oversized, Garage Door Opener, Attached
Heat Type
Exhaust Fan, Natural Gas, Forced Air
Air Conditioning
Central Air, Ceiling Fan(s)
Appliances
Oven, Electric Range, Electric Oven, Gas Water Heater, Dryer, Washer, Dishwasher, Exhaust Fan, Disposal, Microwave, Refrigerator, Water Heater
Other Interior Features
Eat-in Kitchen, Ceiling Fan(s), Kitchen Island, Recessed Lighting
Sewer
Public Sewer
Substructure
Other
Security Features
Smoke Detector(s)
Elementary School
BELVEDERE
Middle School
SEVERN RIVER
High School
BROADNECK
School District
ANNE ARUNDEL COUNTY PUBLIC SCHOOLS
Sales Price
$681,000
Real Estate Tax
$5,744/yr
Zoning
R5

Downloads

220 VIA DANTE

Schedule a Tour

We would love to help you see this beautiful home! As a full-service brokerage, we can help you tour. Please submit an offer, and answer questions about the buying process.

Thank you

for your interest in 220 VIA DANTE, ARNOLD, MD 21012

220 VIA DANTE
Navigate
Arnold

Explore Arnold

A desirable Annapolis suburb known for its scenic neighborhoods, Blue Ribbon schools, and convenient access to Route 50 for commuters.

read more
220 VIA DANTE
explore in 3d

I'm Interested In

220 VIA DANTE

or
  • CallDavid Orso

    License #631291

    (443) 372 7171
  • Our Listings

    Featured Properties

    • 889 LYNCH DRIVE Pending

      $995,000

      889 LYNCH DRIVE, ARNOLD, MD 21012

      • 5 Beds
      • 4 Baths
      • 3,870 Sq.Ft.
    • 227 TREYBURN WAY For Sale

      $629,900

      227 TREYBURN WAY, ARNOLD, MD 21012

      • 4 Beds
      • 3 Baths
      • 3,800 Sq.Ft.
    • 401 ELMWOOD COURT For Sale

      $493,000

      401 ELMWOOD COURT, ARNOLD, MD 21012

      • 4 Beds
      • 3 Baths
      • 1,821 Sq.Ft.
    • 425 CAPSTAN COURT For Sale

      $475,000

      425 CAPSTAN COURT, ARNOLD, MD 21012

      • 3 Beds
      • 3 Baths
      • 2,022 Sq.Ft.
    • 319 ALAMEDA PARKWAY Active Under Contract

      $385,000

      319 ALAMEDA PARKWAY, ARNOLD, MD 21012

      • 3 Beds
      • 1 Bath
      • 1,260 Sq.Ft.
    View All

    Follow Us On Instagram